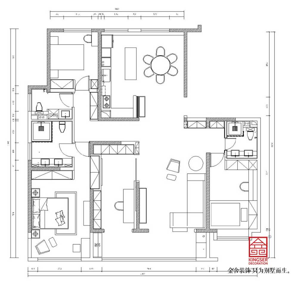
【戶型優(yōu)點(diǎn)】
①整個(gè)戶型都很周正,入戶到玄關(guān)有兩米七的空間,視野寬敞。
②主臥功能全面,具備獨(dú)立衛(wèi)生間和獨(dú)立衣帽間,以及獨(dú)立陽臺(tái)。
③廚房餐廳足夠大,不必?fù)?dān)心儲(chǔ)物功能缺少的問題
【戶型缺點(diǎn)及改進(jìn)】
①衣帽間沒有區(qū)分男女,解決辦法:把主臥衛(wèi)生間縮小,與次臥合成一個(gè)大衛(wèi)生間。這樣主臥的位置就變大,有了男衣帽間的位置。
②主臥和陽臺(tái)的墻體都可拆,打開后空間變的更大了。
③餐廳和廚房雖大,但是沒有大宅的風(fēng)范,可以整個(gè)把廚房和餐廳都打開,做成圍合式的,這樣更有大宅的感覺